世田谷区上祖師谷2丁目中古戸建 東京都世田谷区上祖師谷2丁目|7,199万円の中古一戸建て|株式会社渋谷不動産エージェント
| 価格 | 7,199万円 ![]() |
||||
|---|---|---|---|---|---|
| 所在地 | 東京都世田谷区上祖師谷2丁目
この地域周辺の物件を見る |
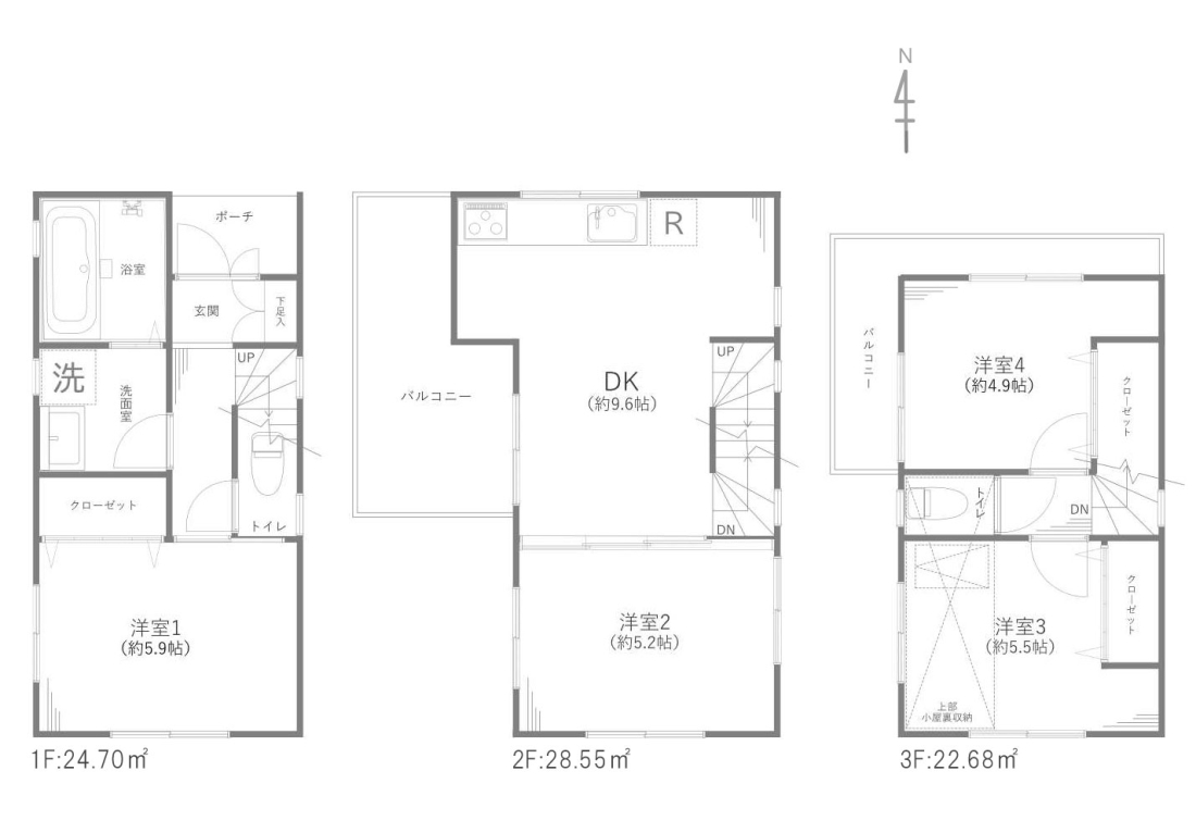
土地面積 | 50m² (公簿) (15.12坪) | 建物面積 | 75.93u |
| 築年月 | 2004年4月築 | 間取り | 4DK (DK9.6/洋室4.9/洋室5.9/洋室5.5/洋室5.2) | ||
| 交通 |
京王線 千歳烏山 徒歩19分
|
||||
| 特徴 |
|
|---|---|
| セールスコメント | - |
| 採光面 | - | 構造/階数 | 木造/地上3階建 |
|---|---|---|---|
| 建ぺい率 | 60(%) | 容積率 | 160(%) |
| 駐車場 | - | 現況/引渡し | 空家/即時 |
| 土地権利 | 所有権 | 私道負担面積 | - |
| 接道状況 | 接道: 北 7m 私道 道路幅: 3.9m | 用途地域 |
第一種中高層住居専用地域
|
| セットバック | - | 法令上の制限 | - |
| 地目 | 宅地 | 地勢 | 平坦 |
| 建築確認番号 | 都市計画 | 市街化区域 | |
| 取引態様 | 仲介 | ||
| 情報更新日 | 2026年04月17日 | 次回更新日 | 2026年05月01日 |
| 小学校区 | () |
中学校区 | () |
|---|
| 価格 | 万円 | ||
|---|---|---|---|
| 年利率 | % |
||
| ボーナス払い | 返済年数 | ||
| 頭金 | 直接入力する | 万円 | |

毎月のご返済額 |
ボーナス(×年2回) |
物件価格7,199万円 |
-