東京都 世田谷区 中古一戸建て・中古住宅|調布の不動産(一戸建て・マンション・土地)情報|渋谷不動産エージェント
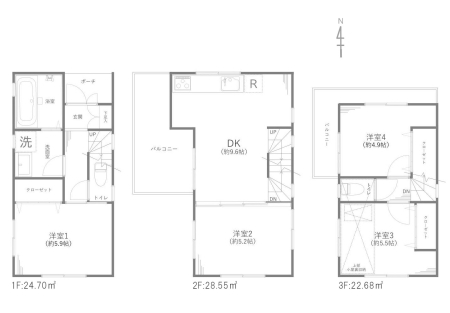
NEW 世田谷区上祖師谷2丁目中古戸建|世田谷区上祖師谷2丁目の中古一戸建て
東京都の市区町村を選択
調布市の町名を選択
府中市の町名を選択
世田谷区の町名を選択
狛江市の町名を選択
三鷹市の町名を選択
多摩市の町名を選択
武蔵野市の町名を選択
京王線の駅を選択
京王相模原線の駅を選択
小田急小田原線の駅を選択
小田急多摩線の駅を選択
JR中央本線の駅を選択
JR武蔵野線の駅を選択
JR総武線の駅を選択
JR南武線の駅を選択
JR中央線の駅を選択
西武多摩川線の駅を選択
京王競馬場線の駅を選択
京王井の頭線の駅を選択
東急東横線の駅を選択
東急田園都市線の駅を選択
東急大井町線の駅を選択
東急世田谷線の駅を選択
世田谷区の小学校を選択
武蔵野市の小学校を選択
三鷹市の小学校を選択
府中市の小学校を選択
調布市の小学校を選択
狛江市の小学校を選択
多摩市の小学校を選択
世田谷区の中学校を選択
府中市の中学校を選択
調布市の中学校を選択
武蔵野市の中学校を選択
三鷹市の中学校を選択
狛江市の中学校を選択
多摩市の中学校を選択
(株)渋谷不動産エージェント 〒182-0024 東京都調布市布田1-44-3 高橋ビル4階
ページ上部へ