ご希望の条件で20件見つかりました (20件中1〜20件を表示)
|
|
| 種別で絞り込む
新築一戸建て(新築一軒家)
中古一戸建て・中古住宅
中古マンション
土地・売地
投資用・収益物件
|
|
|
|
|
中古マンション
スケルトンからのフルリフォーム
角部屋&;amp;amp;amp;amp;amp;amp;amp;#8252;陽当り・眺望・通風良
ペットと一緒に暮らせます。
| 価格 |
2,380万円 |
| 所在地 |
東京都調布市国領町1-17-15 |
| 交通 |
京王線 布田駅 徒歩6分 |
| 間取り |
2DK |
| 専有面積 |
45.36u |
所在階 |
4階/7階建 |
| 築年月 |
1971年8月 |
建物構造 |
マンション/RC造 |
中古マンション
告知事項有り
| 価格 |
2,380万円 |
| 所在地 |
東京都調布市国領町1丁目17-15 |
| 交通 |
京王線 布田駅 徒歩6分 |
| 間取り |
1LDK |
| 専有面積 |
45.36u |
所在階 |
8階/9階建 |
| 築年月 |
1971年8月 |
建物構造 |
マンション/S造 |
1枚 
|
| |
中古マンション
| 価格 |
6,380万円 |
| 所在地 |
東京都調布市国領町8丁目2-2 |
| 交通 |
京王線 国領駅 徒歩8分 |
| 間取り |
2LDK |
| 専有面積 |
61.16u |
所在階 |
1階/8階建 |
| 築年月 |
2005年8月 |
建物構造 |
マンション/RC造 |
1枚 
中古マンション
| 価格 |
6,990万円 |
| 所在地 |
東京都調布市国領町8丁目2-2 |
| 交通 |
- -駅 - |
| 間取り |
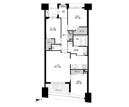
3LDK |
| 専有面積 |
71.2u |
所在階 |
4階/8階建 |
| 築年月 |
2005年8月 |
建物構造 |
マンション/RC造 |
1枚 
新築一戸建て
準防火地域 第1種高度地区 日影規制:4h-2.5h/1.5m 最高高さ10m 宅地造成等工事規制区域 文化財保護法 法第43条第2項第2号通路(北側4m私道)
| 価格 |
7,398万円 |
| 所在地 |
東京都調布市国領町5丁目 |
| 交通 |
京王線 国領駅 徒歩8分 |
| 間取り |
3LDK |
| 建物面積 |
93.15u |
土地面積 |
116.73u (実測)(35.31坪) |
| 築年月 |
2026年6月 |
建物構造 |
一戸建て/木造 |
|
|
|
|
|
ご希望の条件で20件見つかりました (20件中1〜20件を表示)
|
|