三鷹ナショナルコート1号棟 東京都三鷹市牟礼6丁目24-12|4,199万円の中古マンション|分譲住宅や新築物件|株式会社渋谷不動産エージェント
| 価格 | 4,199万円 ![]() |
||||
|---|---|---|---|---|---|
| 所在地 | 東京都三鷹市牟礼6丁目24-12
この地域周辺の物件を見る |
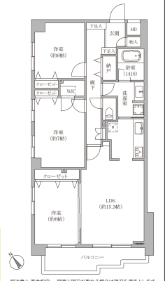
専有面積 | 69.28u | 築年月 | 1974年9月築 |
| 交通 |
JR中央線 吉祥寺 バス8分 停歩5分
|
管理費等 | 10,300円 | 修繕積立金 | 15,000円 | 所在階/階数 | 6階/地上7階建 | バルコニー面積 | 7.42m² |
| 間取り | 3LDK (-) | ||||
| 特徴 |
|
|---|---|
| セールスコメント | - |
| 採光面 | 南東 | 取引態様 | 仲介 |
|---|---|---|---|
| 現況 | 空家 | 引渡し | 相談 |
| 総戸数 | 139戸 | 構造 | RC造 |
| テラス面積 | - | 専用庭面積 | - |
| 駐車場 | 有:16,000円/月 | 駐輪場 | 有:300円/月 |
| 建物権利 | 区分所有 | 土地権利 | 所有権 |
| 用途地域 | - - - | 管理態様 | 管理形態:委託(通勤) 管理組合:- 管理会社:日本ハウズイング(株) |
| 情報更新日 | 2026年04月09日 | 次回更新日 | 2026年04月23日 |
| 小学校区 | 三鷹市立北野小学校 (東京都三鷹市) この学区の他の物件を見る |
中学校区 | 第六中学校 (東京都三鷹市) この学区の他の物件を見る |
|---|
| 価格 | 万円 | ||
|---|---|---|---|
| 年利率 | % |
||
| ボーナス払い | 返済年数 | ||
| 頭金 | 直接入力する | 万円 | |

毎月のご返済額 |
ボーナス(×年2回) |
物件価格4,199万円 |
-