ライオンズマンション調布C棟 東京都調布市染地2丁目8-3|3,180万円の中古マンション|分譲住宅や新築物件|株式会社渋谷不動産エージェント
| 価格 | 3,180万円 ![]() |
||||
|---|---|---|---|---|---|
| 所在地 | 東京都調布市染地2丁目8-3
この地域周辺の物件を見る |
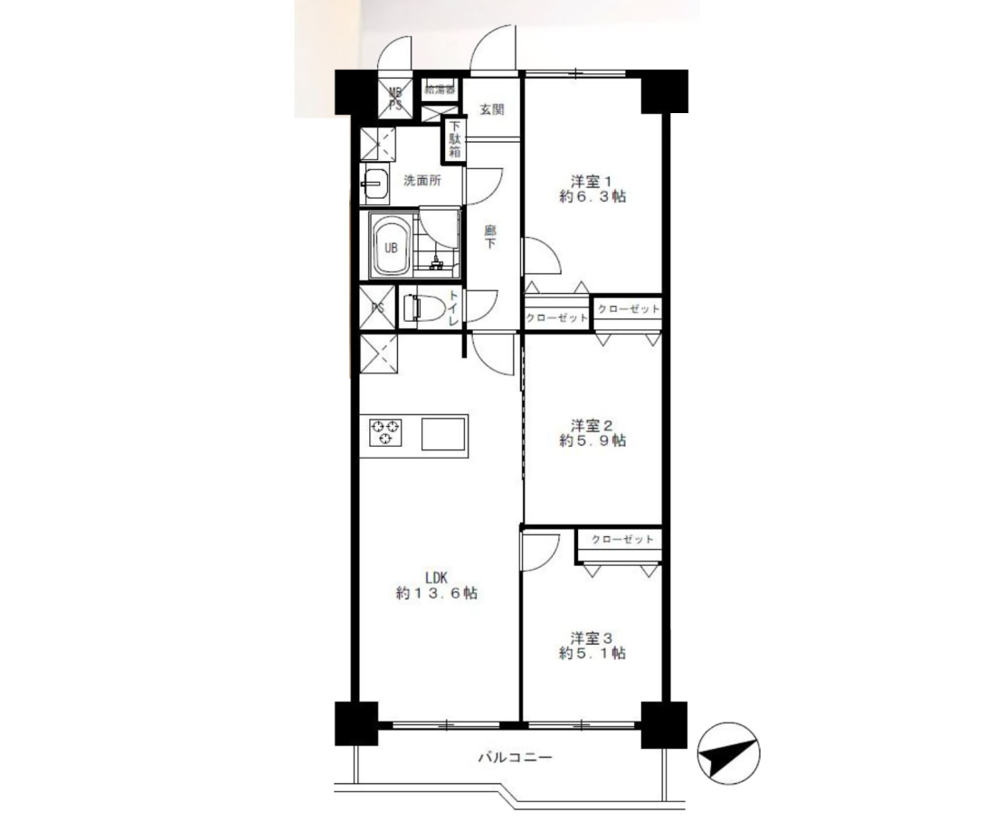
専有面積 | 66.08u | 築年月 | 1981年5月築 |
| 交通 |
京王線 布田 徒歩16分
|
管理費等 | 6,900円 | 修繕積立金 | 10,990円 | 所在階/階数 | 3階/地上12階建 | バルコニー面積 | 7.17m² |
| 間取り | 3LDK (-) | ||||
| 特徴 |
|
|---|---|
| セールスコメント | - |
| 採光面 | 南西 | 取引態様 | 仲介 |
|---|---|---|---|
| 現況 | 空家 | 引渡し | 相談 |
| 総戸数 | 278戸 | 構造 | SRC造 |
| テラス面積 | - | 専用庭面積 | - |
| 駐車場 | - | 駐輪場 | - |
| 建物権利 | 区分所有 | 土地権利 | 所有権 |
| 用途地域 | - - - | 管理態様 | 管理形態:日勤 管理組合:- 管理会社:伊藤忠アーバンコミュニティ(株) |
| 情報更新日 | 2025年12月04日 | 次回更新日 | 2025年12月18日 |
| 小学校区 | 調布市立杉森小学校 (東京都調布市) この学区の他の物件を見る |
中学校区 | 第三中学校 (東京都調布市) この学区の他の物件を見る |
|---|
| 価格 | 万円 | ||
|---|---|---|---|
| 年利率 | % |
||
| ボーナス払い | 返済年数 | ||
| 頭金 | 直接入力する | 万円 | |

毎月のご返済額 |
ボーナス(×年2回) |
物件価格3,180万円 |
-